工事管理はお任せ下さい!特定建設業許可(機械器具設置工事業)も有しています。
お客様のお困りごと FB-43
紙加工会社様での事例です。新工場建設に伴い、生産設備の導入や移設のご依頼を頂きました。高い生産性、高品質を実現できる工場となるよう、設備の選定、機器の適正配置についてもご相談頂きました。
お客様の抱える課題
- 限られた期間の中で、複数の工事を同時施工する必要があり、工程調整を業者間で行わなければならない。
- タンクなどの大型設備導入もあり、搬送、据付は重量鳶工事となる。
- 効率的な製品搬送ができるように、複数の機器を組み合わせたラインを構築する必要がある。
蒲田工業からのご提案内容
解決のポイント
- 建築工事がメインでしたが、空調工事や電気工事も同時に行われ、業者間で作業日程、工程の調整が必要でした。工事の追加や日程変更などに合わせ何度も工程表を作成し直しました。
- 搬送システムは垂直搬送機、ベルトコンベア、スチールローラーコンベアを組み合わせ、動線に配慮しレイアウトしました。
主な工事の内容
- 薬液及びエアー配管工事。
- 垂直搬送機設置。
- 新規タンク設置及び付帯配管工事。旧工場使用タンク内面研磨の上移設。
- 生産ライン2ライン移設。新工場レイアウトにあわせて一部改造。
- エアシャワー設置。
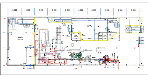
■ 設備移設前

■ 設備移設後

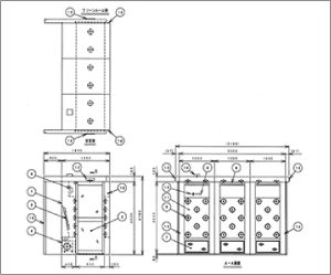
■ 垂直搬送機納入図

■ エアーシャワー納入図

■ 工程表の一部

解決した内容、お客様の声
トータルコストを少しでも削減できるように、工事に必要資材などは当社のネットワーク、購買力を最大限に発揮して手配を行いました。工事期間中に設備や備品の追加発注も頂き、トイレ設備や、台車、ラック、高所作業車などもあわせて納入致しました。
工事期間中常に現場にいたため、頼みやすいと言って頂けました。
かなりタイトな日程での施工となりましたが、事故やトラブルもなく無事完工でき、お客様から新工場の稼働がスムーズに行えたと感謝の言葉を頂くことができました。
蒲田工業がご提供できる価値
蒲田工業は特定建設業許可(機械器具設置工事業、管工事業、建築工事業、とび・土工工事業、内装仕上工事業、塗装工事業)を保有し、様々な工事を行っております。機器類の設置工事だけでなく、既存設備の撤去、解体、移設などにも豊富な施工実績があります。強みとするトータルコーディネート力で、安全、確実に責任を持って施工にあたります。
事例番号
FB-43
※お問い合わせの際は「事例番号」をお伝え下さい。
営業パーソンの紹介 営業推進室 佐野将太

若さと誠意を武器に常に全力投球がモットーです。
工事においても事前調整、現場立会、監督、安全管理、折衝と日々経験を積み重ねています。
前向きな姿勢は社内でも高く評価されています。
この事例に関連する他の事例の紹介
生産ラインのレイアウト変更を、計画から施工まで一貫して行ないます! [共通キーワード:生産ライン変更]
工場の改修工事〈複数の補修課題〉を一貫対応!効率的な工程管理と安全性を考慮した施工 [共通キーワード:工場改修]
工場プラント工事!無機粉体混合出荷設備の建設 [共通キーワード:工場改修]
既設設備の撤去解体工事と新設備の入れ替え、粉塵対策、配管工事をワンストップ施工 [共通キーワード:工場改修]
工場建屋内の機械・設備を撤去(解体・搬出)。 配管撤去と既設壁の改修工事を一括請負 [共通キーワード:工場改修]
間仕切り工事・付帯工事など、多様な工事を一括して施工管理。短納期に対応しました [共通キーワード:改造・移設工事]
各工程ごとに分かれたラインの乗継部分を自動化[同業種事例]